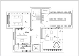
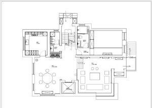
「 Design sketch 」
「 Design description 」
The overall design centers on the cohesive concept of “harmonizing diverse elements,” cultivating a distinctly Chinese aesthetic sensibility and character. By emphasizing the articulation of details as a means of ornamentation, the space achieves a personalized charm that balances rustic simplicity with refined grandeur in residential environments.

「 Design scheme of negative first floor teahouse 」
The design of the tea room integrates modern and Chinese traditional style to create a stable and classical atmosphere with solid wood furniture and dark tone colors.
「 Design scheme of reception area on negative first floor 」
The reception area presents a clean and orderly space with simple and bright lines.
「 Design scheme of staircase on negative first floor 」
The staircase uses glass floors to improve space utilization. In the video room, the designer combines a starry ceiling and blue light strips to create relaxing and fun mood for the owners.
「 Design scheme of negative first floor audio-visual room 」
The ceiling part directly above the audio-visual room adopts the starry sky top design with line lights and lamp beads, and with the blue light design of the lamp belt, it meets the aesthetics of the whole space on the premise of ensuring functionality, and you can enjoy the ultimate feeling of watching movies without leaving home.
「 Design scheme of living room area 」
The living room design combines calming colors in Chinese style with green plants to match traditional Asian style furniture.
「 Dining room area design scheme 」
The dining room has symmetrical structures and layering to give the design texture and depth.
「 Design scheme of corridor on the first floor 」
The corridor refines Chinese traditional elements to create a romantic atmosphere of Oriental aesthetics.
「 Kitchen design scheme 」
「 Design scheme of second bedroom bathroom on the first floor 」



































